Plastové okná

Plastové okná

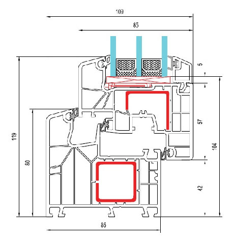
GEALAN 9000 plus

Obrázok 1 z 1

GEALAN 9000 plus

Najlepší pomer cena/kvalita na trhu. Systém Gealan 9000 plus ponúka vypĺnenú komoru izolačnou penou plus pevné stredové tesnenie, ktoré zaručuje maximálne izolačné vlastnosti a bezpečnostnú odolnosť. Odporúčame pre nízkoenergetické stavby.

 

Popis

  • Počet komôr: 6
  • Počet tesnení: 3
  • Stavebná hĺbka rámu: 82,5 mm
  • Trojité vymeniteľné dorazové tesnenie
  • Hrúbka zasklenia: do 52 mm
  • Štandardná zasklievacia súprava je 4th/18Ar/4/18Ar/4th Ug=0,5
  • Tepelná izolácia profilu: Uf = 0,74 W/ m²K
  • Tretie pevné tesnenie
  • Uzavretá výstuha
  • Použitie bezpečnostného kovania Siegenia – vynikajúca ochrana pred vlámaním
  • Dostupné v mnohých farbách

GEALAN 9000

Obrázok 1 z 2

GEALAN 9000

Overený systém, odporúčaný pre nízkoenergetické stavby.

 

Popis

  • Počet komôr: 6
  • Počet tesnení: 3
  • Stavebná hĺbka rámu: 82,5 mm
  • Trojité vymeniteľné dorazové tesnenie
  • Hrúbka zasklenia: do 52 mm
  • Štandardná zasklievacia súprava je 4th/18Ar/4/18Ar/4th Ug=0,5
  • Tepelná izolácia profilu: Uf = 0,85 W/ m²K
  • Trojité tesnenie
  • Použitie bezpečnostného kovania Siegenia – vynikajúca ochrana pred vlámaním
  • Dostupné v mnohých farbách

GEALAN 8000

Obrázok 1 z 2

GEALAN 8000

Vynikajúca tepelná izolacia vďaka šiestim komorám v ráme a krídle. Cenovo veľmi dostupný systém.
 

Popis

  • Počet komôr: 6
  • Počet tesnení: 2
  • Stavebná hĺbka rámu: 74 mm
  • Hrúbka zasklenia: do 48 mm
  • Štandardná zasklievacia súprava je 4th/18Ar/4/18Ar/4th Ug=0,5
  • Dvojité tesnenie
  • Použitie bezpečnostného kovania Siegenia – vynikajúca ochrana pred vlámaním
  • Dostupné v mnohých farbách

Salamander BluEvolution 92

Obrázok 1 z 3

Salamander BluEvolution 92

Záruka najvyššej energetickej hospodárnosti. Okná so systémom BluEvolution 92 zaručujú splnenie nárokov pre nízkoenergetické a pasívne domy a hlavne zaisťujú úsporu nákladov za vykurovanie domu.

 

Popis

  • Počet komôr: 6
  • Počet tesnení: 3
  • Stavebná hĺbka rámu: 92 mm
  • Trojité vymeniteľné dorazové tesnenie
  • Hrúbka zasklenia: do 60 mm
  • Štandardná zasklievacia súprava je 4th/18Ar/4/18Ar/4th Ug=0,5
  • Tepelná izolácia profilu: Uf = 0,9-1,0 W/ m²K
  • Prestup tepla oknom: Uw = 0.71 W/m²K
  • Trojité vymeniteľné dorazové tesnenie
  • Oceľová pozinkovaná výstuha o hrúbke 2 mm
  • Použitie bezpečnostného kovania Siegenia – vynikajúca ochrana pred vlámaním
  • Dostupné v mnohých farbách

Salamander BluEvolution 82

Obrázok 1 z 3

Salamander BluEvolution 82

Vysoká kvalita, tepelná účinnosť, dostupná cena, týmto sa vyznačuje systém BluEvolution 82 určený pre nízkoenergetické stavby.

 

Popis

  • Počet komôr: 6
  • Počet tesnení: 3
  • Stavebná hĺbka rámu: 82 mm
  • Trojité vymeniteľné dorazové tesnenie
  • Hrúbka zasklenia: do 53 mm
  • Štandardná zasklievacia súprava je 4th/18Ar/4/18Ar/4th Ug=0,5
  • Tepelná izolácia profilu: Uf = 0,97 W/ m²K
  • Prestup tepla oknom: Uw = 0.76 W/m²K
  • Trojité vymeniteľné dorazové tesnenie
  • Oceľová pozinkovaná výstuha o hrúbke 2 mm
  • Použitie bezpečnostného kovania Siegenia – vynikajúca ochrana pred vlámaním
  • Dostupné v mnohých farbách

Salamander Streamline 76

Obrázok 1 z 2

Salamander Streamline 76

Systém Streamline sa vyznačuje ultra bielou farbou. Vďaka hranatému aj oblému tvaru sa hodí pre všetky typy stavieb.

 

Popis

  • Počet komôr: 5
  • Počet tesnení: 2
  • Stavebná hĺbka rámu: 76 mm
  • Hrúbka zasklenia: do 48 mm
  • Štandardná zasklievacia súprava je 4th/16Ar/4/16Ar/4th Ug=0,5
  • Tepelná izolácia profilu: Uf = 1,3W/ m²K
  • Prestup tepla oknom: Uw = 0.9 W/m²K
  • Dvojité vymeniteľné dorazové tesnenie
  • Oceľová pozinkovaná výstuha o hrúbke 2 mm
  • Použitie bezpečnostného kovania Siegenia – vynikajúca ochrana pred vlámaním
  • Dostupné v mnohých farbách

Salamander BluEvolution 73

Obrázok 1 z 3

Salamander BluEvolution 73

Systém, ktorý napriek dobrým technickým parametrom je cenovo veľmi dostupný.
 

Popis

  • Počet komôr: 5
  • Počet tesnení: 2
  • Stavebná hĺbka rámu: 73 mm
  • Hrúbka zasklenia: do 44 mm
  • Štandardná zasklievacia súprava je 4th/14Ar/4/14Ar/4th Ug=0,6
  • Tepelná izolácia profilu: Uf = 1,3W/ m²K
  • Prestup tepla oknom: Uw = 0.9 W/m²K
  • Dvojité vymeniteľné dorazové tesnenie
  • Použitie bezpečnostného kovania Siegenia – vynikajúca ochrana pred vlámaním
  • Dostupné v mnohých farbách

Veka Softline 82

Obrázok 1 z 2

Veka Softline 82

Prémiový okenný systém ktorý spĺňa najprisnejšie izolačné normy. Vhodný do nízkoenergetických stavieb.
 

Popis

  • Počet komôr: 7
  • Počet tesnení: 3
  • Stavebná hĺbka rámu: 82 mm
  • Trojité vymeniteľné dorazové tesnenie
  • Hrúbka zasklenia: do 52 mm
  • Štandardná zasklievacia súprava je 4th/18Ar/4/18Ar/4th Ug=0,5
  • Tepelná izolácia profilu: Uf = 0,95 W/ m²K
  • Prestup tepla oknom: Uw = 0.78 W/m²K
  • Oceľová pozinkovaná výstuha o hrúbke 2 mm
  • Použitie bezpečnostného kovania Maco – vynikajúca ochrana pred vlámaním
  • Dostupné v mnohých farbách

Aluplast Ideal 8000

Obrázok 2 z 2

Aluplast Ideal 8000

Aluplast Ideal 8000 poskytuje tepelnú izoláciu a akustickú izoláciu na najvyššej úrovni. Odporúčané pre nízkoenergetické stavby.

 

Popis

  • Počet komôr: 6
  • Počet tesnení: 3
  • Stavebná hĺbka 85 mm
  • Systém vybavený 3 tesneniami
  • Zasklenie sklami do hrúbky 52 mm
  • Štandardná zasklievacia súprava je 4th/18Ar/4/18Ar/4th [Ug=0,5]
  • Tepelná izolácia profilu: Uf = 1,0 W/ m²K
  • Prestup tepla oknom: Uw = 0.75 W/m²K
  • K dispozícii vo verzii s plochým krídlom alebo oblým krídlom
  • Možnosť použitia skrytého kovania
  • Odporúčané pre energeticky úsporné stavby

Aluplast Ideal 5000

Obrázok 1 z 2

Aluplast Ideal 5000

Vďaka jeho flexibilite, dobrej zvukovej izolácii a systému stredového tesnenia je profil vhodný na výrobu okien v bytovej výstavbe novostavbách či pri rekonštrukciách.

 

Popis

  • Počet komôr: 5
  • Počet tesnení: 3
  • Stavebná hĺbka rámu: 70 mm
  • Hrúbka zasklenia: do 42 mm
  • Štandardná zasklievacia súprava je 4th/14Ar/4/14Ar/4th Ug=0,6
  • Tepelná izolácia profilu: Uf = 1,2W/ m²K
  • Prestup tepla oknom: Uw = 0.92 W/m²K
  • Dvojité vymeniteľné dorazové tesnenie
  • Použitie bezpečnostného kovania Siegenia – vynikajúca ochrana pred vlámaním
  • Dostupné v mnohých farbách

Aluplast Ideal 4000

Obrázok 1 z 2

Aluplast Ideal 4000

Cenovo veľmi dostupný systém, vhodný do rekonštrukcií.
 

Popis

  • Počet komôr: 5
  • Počet tesnení: 2
  • Stavebná hĺbka rámu: 70 mm
  • Hrúbka zasklenia: do 42 mm
  • Štandardná zasklievacia súprava je 4th/14Ar/4/14Ar/4th Ug=0,6
  • Tepelná izolácia profilu: Uf = 1,3W/ m²K
  • Prestup tepla oknom: Uw = 1,0 W/m²K
  • Dvojité vymeniteľné dorazové tesnenie
  • Použitie bezpečnostného kovania Siegenia – vynikajúca ochrana pred vlámaním
  • Dostupné v mnohých farbách

HST

Obrázok 1 z 1

HST

Zdvižno-posuvné dvere dávajú každej izbe priestrannú a svetlú atmosféru. S jednoduchým pohybom zápästia vytvoríte hladké prepojenie interiéru a exteriéru.
 

Popis

  • Počet komôr: 5
  • Stavebná hĺbka rámu: 194 mm
  • Hrúbka zasklenia: do 52 mm
  • Tepelná izolácia profilu Uf: 1,3 W/ m²K
  • Bezbariérový prístup
  • Dostupné v mnohých farbách